HMS Triton, 1773 -Versuch einer Rekonstruktion

  • Leider war meine Konstruktion falsch, wie mir Alexander im AK Forum mitteilte. Die Kante am Übergang zwischen Stem und Knee of the Head gab es nicht. Es gibt eine Zeichnung in Steels Naval Architecture, die dieses Detail zeigt. Leider fehlt das Buch in meiner Bibliothek und ich habe die Vorgehensweise, welches D. Antscherl bei der Swan-Class verwendet hat, übernommen. Also zurück auf Anfang und einen neuen Steven gebaut.

    Gruß Christian

    "Behandle jedes Bauteil, als ob es ein eigenes Modell ist; auf diese Weise wirst Du mehr Modelle an einem Tag als andere in ihrem Leben fertig stellen."

  • Nach eineinhalb Jahren Pause ist es Zeit für ein kleines Update. Letzten Monat ist mein Einsatz in den Niederlanden und auch die Arbeit im Homeoffice zu Ende gegangen. Ich hätte nicht gedacht, dass ich mich mal wieder auf das Büro freue.

    Zusätzlich habe ich mir im Sommer einen Traum erfüllen können und mir eine "kleine" CNC-Fräse gekauft.

    Da meine kleine Werft ab Ende des Jahres wieder ihren Betrieb aufnehmen kann, war es Zeit für eine Bestandsaufnahme.

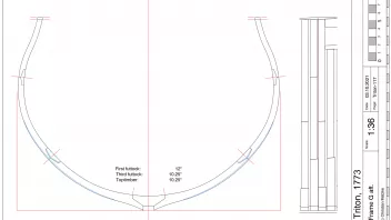
    1. Maßstab

    Ursprünglich hatte ich geplant, das Modell im Maßstab 1/48 zu bauen. Mittlerweile tendiere ich jedoch dazu, in 1/36 zu arbeiten. Ich möchte gerne die Spantkonstruktion zeigen. Im kleineren Maßstab sind die Feinheiten und unterschiedlichen Stärken der Spanten nicht mehr zu zeigen. Nachteil dieser Entscheidung ist, dass der Rumpf rund 30 cm länger wird.

    2. Spantzeichnungen

    Beim Aussägen der Spanten von Hand bin ich ursrpünglich von einer Bautoleranz von +/- 1mm ausgegangen. Für die Spantsärke sind in der Literatur nur wenige Maße angegeben. Alle übrigen Werte müssen interpoliert werden. Bei der genannten Bautoleranz reicht es aus, die Linien mit einer Genauigkeit von +/- 2/10mm zu zeichnen.

    Mit meinem neuen Spielzeug kann ich deutlich genauer arbeiten und muss daher später weniger schleifen. Allerdings müssen die Zeichnungen die höhere Genauigkeit auch unterstützen. Also musste ich noch einmal zurück an mein CAD und meine Spantzeichnungen anpassen.

    Mittlerweile habe ich alle Parallelspanten neu gezeichnet:

    Nach Fertigstellung der Kantspanten, kann ich anfangen, die Bauteilzeichnungen für die CNC-Fräse abzuleiten.

    3. Nebenprojekte

    Das Thema ist eigentlich meine größte Baustelle. Ich habe zu viele Modelle und Projekte im Kopf. Daher neige ich dazu mich bei Problemen ablenken zu lassen und einfach an einem anderen Modell weiter zu arbeiten. Ich weiß nicht, ob ich es schaffe, aber ich habe alle Nebenprojekte eingemottet oder auch rückgebaut.
    Anders werde ich es wohl nie schaffen, mein Traummodell fertig zu stellen.

    Soweit für heute. Ich hoffe ab Januar wieder regelmäßig über den Bau berichten zu können.

    Gruß Christian

    "Behandle jedes Bauteil, als ob es ein eigenes Modell ist; auf diese Weise wirst Du mehr Modelle an einem Tag als andere in ihrem Leben fertig stellen."

  • Zum Jahresende noch ein neuer Kiel :hmm: :

    Da sich meine Admiralität eine vollgetakeltes Modell wünscht, wird die HMS Triton im Maßstab 1/48 gebaut - auch wenn ich bei einigen Details Kompromisse eingehen muß. Eine getakelte Fregatte wird im größeren Maßstab einfach zu groß.

    Die letzten Tage habe ich dazu verwendet, mein neues Spielzeug besser kennen zu lernen. Nach einigen Fehlversuchen und abgebrochenen Fräsern, konnte ich die ersten Bauteile vorbereiten:

    Bonden

    Könnte Eure Admiralität bitte das Navy Board informieren, dass der Bau im neuen Jahr wieder startet.

    Gruß Christian

    "Behandle jedes Bauteil, als ob es ein eigenes Modell ist; auf diese Weise wirst Du mehr Modelle an einem Tag als andere in ihrem Leben fertig stellen."

  • Jawolllll Ein Kiel im neuen Jahr!

    Da wünsche ich Doch viel Spass mit dem neuen Spielzeug und freue mich auf mehr!

    Beste Grüsse

    Peter

  • Da ich den letzten Kiel beim Anlegen der Sponung gekillt habe -der Grund für die lange Pause-, muss ich einen neuen Kiel bauen.

    Da sich die Vorgehensweise nicht großartig im Vergleich zum bereits beschriebenen ändert, zeige ich Euch nur Anpassungen, die ich vorgenommen habe. Mit Hilfe der CNC lassen sich leicht, schnell und präzise kleine Hilfskonstruktionen bauen, die den Bau des Modells erleichtern.

    Diese kleine Konstruktion habe ich zum Ankleben des falschen Kiels verwendet. So schnell und präzise habe ich das früher nicht hinbekommen.

    Gruß Christian

    "Behandle jedes Bauteil, als ob es ein eigenes Modell ist; auf diese Weise wirst Du mehr Modelle an einem Tag als andere in ihrem Leben fertig stellen."

  • den letzten Kiel beim Anlegen der Sponung gekillt hab

    und "gekielt" wäre dann der neue Ausdruck für Modellbau alla AnobiumPunctatum... :pf:

    Ja so ein CNC-Dingens wäre schon 'ne tolle Sache! Da wächst ein ganz klein wenig Neid hail

    Schön, dass es voran geh!

    Beste Grüsse

    Peter

  • Und zack, ist das Schild am Eingangstor deiner Werft ausgewechselt! :D Ich lege mich mal fest und behaupte, dass du uns diesmal alle überraschen wirst und einfach immer weiter baust, bis plötzlich ein ganzes Schiff da steht. Damit das "Kiel holen á la Anobium" endlich mal ein Ende hat. :sun::wink:

    Von mi jeden Falls viel Erfolg! fr18

  • Tja Christian...dann lass doch diesmal deinen Traum wahrwerden. Ich kenne das mit dem Kopf freibekommen oder bei Problemen erstmal anderweitig weitermachen, aber unterm Strich, wie Du siehst, landet man wieder am Anfang... :D

    Ich wünsche dir für dieses tolle Scratch Projekt , ich werde immer OOB Builder sein..., weiterhin so viel Freude, Lust und keine Hürden, die dich davon abhalten weiterzumachen.

    Ich bleibe auf jeden Fall treuer Leser und Zuschauer deines Projektes.

    Es grüßt

    Cpt. Baltimore

    Werftbetrieb gestartet für 2-Mast Schoner "Flying Fisch" M1:50. Baumaterial und tüchtige Handwerker für den Start des Projektes nun in ausreichender Menge/Anzahl vorhanden. 3 Fässer Rum haben sich bereits eingefunden, um die Arbeitsmoral in die richtigen Bahnen zu lenken. Nach Schichtende versteht sich!beer

  • ...wenn ich mir alleine schon die Herstellung des Stevens mit den ganzen Einzelteilen, wie in real anschaue....

    da gibt es dann nur eines...dranbleiben und sich auf jeden weiteren neuen geposteten Fortschritt freuen.

    Es grüßt

    Cpt. Baltimore

    Werftbetrieb gestartet für 2-Mast Schoner "Flying Fisch" M1:50. Baumaterial und tüchtige Handwerker für den Start des Projektes nun in ausreichender Menge/Anzahl vorhanden. 3 Fässer Rum haben sich bereits eingefunden, um die Arbeitsmoral in die richtigen Bahnen zu lenken. Nach Schichtende versteht sich!beer

  • Als nächstes habe ich nach einer Lösung für die Konstruktion des hinteren Totholzes und vor allem für eine stabile Verbindung zwischen den relativ massiven Bauteilen und dem Kiel gesucht. Die Drahtstifte, die ich bisher beim Steven verwendet habe, waren nicht der Weisheit letzter Schluss.

    Aber auch hier bietet das Vorbild eine Lösung. In "Building the wooden fighting ships" von J. Dodds ist eine Zeichnung abgedruckt die eine Nut und Feder-Verbindung beim Achtersteven zeigt. Für die Verbindung des Deadwoods habe ich bisher keinen Hinweis gefunden; da das Detail unsichtbar ist, ist modellbauerische Freiheit erlaubt.

    Zuerst habe ich das Verfahren am Apron (vorderes Totholz) getestet. Beim Fräsen des Bauteils habe ich den Zapfen gefräst. Für das Kielsegment wurde zuerst eine Hilfskonstruktion gebaut, um anschließend die Nut fräsen zu können. Das Ergebnis stimmt auf jeden Fall schon mal zuversichtlich.

    Als nächstes wurde das Verfahren beim hinteren Totholz und beim Achtersteven angewendet. Hier zeicht sich, dass es besser ist für das Totholz zwei Federn zu fräsen, um das Bauteil so mittig und parallel wie möglich am Kiel ausrichten zu können.

    Die kleinen waagerechten Riefen entstehen beim Fräsen der Haltenasen; sie sind nach dem Verleimen der Bauteile nicht sichtbar, bzw. müssen an den sichtbaren Kanten verschliffen werden.

    Extra für unseren Admiral, Peter_H und allen anderen "Kiel-Fetischisten"roflhabe ich die vorbereiteten Bauteile zusammengestellt. Den fehlenden Vordersteven müsst ihr Euch aus Beitrag 42 dazudenken. Die Bilder (oder besser gesagt die Bauteile) motivieren zum Weiterbauen.

    Als nächstes muss ich mir eine Lösung für das Fräsen (Vorbereiten) der Sponung und der 3D-Form der Tothölzer überlegen. Da meine Zeichnungen nur in 2D vorliegen, ist für das Endergebnis Handarbeit angesagt.

    Auch muss ich noch einen Testspant bauen, um mehr Gefühl für die nötigen Toleranzen zu bekommen. Bisher habe ich mit 5/100 mm für das Verleimen gerechnet, was sich beim Zusammenbau des hinteren Totholzes, als zu gering erwiesen hat. Die bisherigen Arbeitsschritte zeigen, das 1/10mm realistischer ist.

    Leider endet mein Urlaub und die Zeit für das Hobby wird wieder weniger, aber die nächsten Bauteile werden folgen.

    Gruß Christian

    "Behandle jedes Bauteil, als ob es ein eigenes Modell ist; auf diese Weise wirst Du mehr Modelle an einem Tag als andere in ihrem Leben fertig stellen."

  • ...weiß ehrlich gesagt nicht, was ich sagen/schreiben soll. das ist eine ganz andere Klasse, in der Du da unterwegs bist.

    Unglaublich....toll, das es auch solch ein Projekt hier im Forum gibt.

    Ich staune und geniesse derzeit jeden neuen deiner Berichte samt Fotos.

    Was jedoch die Qualität und Klasse der Bauarbeiten und Projekte aller anderen nicht mindern soll!!

    Dir AnobiumPunctatum 11 von 10 Sternen!

    Es grüßt staunend

    Cpt. Baltimore

    Werftbetrieb gestartet für 2-Mast Schoner "Flying Fisch" M1:50. Baumaterial und tüchtige Handwerker für den Start des Projektes nun in ausreichender Menge/Anzahl vorhanden. 3 Fässer Rum haben sich bereits eingefunden, um die Arbeitsmoral in die richtigen Bahnen zu lenken. Nach Schichtende versteht sich!beer

  • Diese Woche ereichte das Werftgelände eine dringend benötigte Lieferung.

    Das Birnenholz hat eine sehr gute Qualität und die durch die Admiralität genehmigte Menge sollte für den Bau des Spantgerüsts ausreichend sein.

    Gruß Christian

    "Behandle jedes Bauteil, als ob es ein eigenes Modell ist; auf diese Weise wirst Du mehr Modelle an einem Tag als andere in ihrem Leben fertig stellen."

  • Bevor es richtig losgehen kann, musste ich noch ausprobieren, wie sich mit der neuen Technik Spanten bauen lassen. Bei früheren Versuchen hatte ich die Spanten mit Übermaß ausgesägt, vorsichtig angepasst und auf einer Schablone zusammengeklebt. Für die Darstellung eines Versatzes habe ich unter die Spanten Kunsttoff- oder Kartonplättchen gelegt.

    Anstelle der Papierschablone habe ich eine Schablone in eine Sperrholzplatte gefräst. Diese enthält direkt die benötigten Tiefen für den Versatz der einzelnen Futtocks.

    Alle Spantbauteile werde ebenfalls in der benötigten Stärke aus einem Brett gefräst, versäubert und in die Schablone eingepasst. (Für den Test habe ich eine alte 6.5mm Birnenplatte, die durch die Streifen im Holz zur Darstellung eines Tigers aber nicht für ein Schiffsmodell geeignet ist verwendet. Spant 0 wird für das Modell ca 2mm breiter.)

    Als nächstes wurden die chocks (Kalben) angepasst und eingeleimt.

    Als Ergbenis erhält man einen formgetreuen und deutlich stabileren Spant als in konventioneller Bauweise, da die einzelnen Bauteile fast fugenlos zusammenpassen. Ein Versatz von ca 0.25mm (0.5'' im Original) ist noch problemlos darstellbar. Damit ergibt sich auch die minimale Toleranz beim Bau des Modells.

    Damit sind alle Vorbereitungen und Tests abgeschlossen. Die Testphase war zwar, als ich Weihnachten gestartet bin, nicht geplant, doch musste ich einige Abläufe an mein neues Spielzeug anpassen. Auch bietet mir die Fräse neue Möglichkeiten, die ich mit meinen handwerklichen Fähigkeiten anders nicht umsetzen könnte.

    Gruß Christian

    "Behandle jedes Bauteil, als ob es ein eigenes Modell ist; auf diese Weise wirst Du mehr Modelle an einem Tag als andere in ihrem Leben fertig stellen."

  • Wie bereits von mir angemerkt.......ohne Worte....einfach nur schauen, mitlesen, geniessen.

    Danke für dieses tolle Projekt !

    Es grüßt

    Cpt. Baltimore

    Werftbetrieb gestartet für 2-Mast Schoner "Flying Fisch" M1:50. Baumaterial und tüchtige Handwerker für den Start des Projektes nun in ausreichender Menge/Anzahl vorhanden. 3 Fässer Rum haben sich bereits eingefunden, um die Arbeitsmoral in die richtigen Bahnen zu lenken. Nach Schichtende versteht sich!beer

  • NEIN, Herr Admiral!

    Der Bau wurde nicht unterbrochen. Die Handwerker haben noch ihre Schwierigkeiten mit dem neuen Werkzeug. Erst passt ein Bauteil, dann wieder nicht ...

    Ich habe die letzten zwei Wochenenden mit der Fehleranalyse verbracht. So langsam steige ich dahinter was alles falsch läuft. Auf die richtige Idee bin ich auch erst durch etliche Fehlversuche gekommen. Das Grundbrett aus Birke Multiples verlief nicht exakt parallel zur Fräse. Es hatte leichte Unterschiede in der Dicke. Um diesen Fehler zu beseitigen habe ich das Brett plan gefräst.

    Ein weiteres Problem, wenn man die Brettchen auf die richtige Dicke fräst bzw. von zwei Seiten bearbeitet, ist die Durchbiegung. Hierfür habe ich noch keine 100% Lösung. Aber ich bin auf dem richtigen Weg. Evtl. muss ich in der Mitte zusätzliche Schrauben verwenden. Da macht allerdings Probleme bei größeren Bauteilen.

    Jawoll Herr Admiral, ich werde die Verfahren anpassen und dann berichten.

    Ab nächste Woche muss ich jede Woche für 4 Tage nach Stockholm, so dass ich mein exorbitantes Bautempo auf ein gesundes Maß drosseln muss. Es wird aber stetig weiter gehen.

    Gruß Christian

    "Behandle jedes Bauteil, als ob es ein eigenes Modell ist; auf diese Weise wirst Du mehr Modelle an einem Tag als andere in ihrem Leben fertig stellen."

  • Ich habe die letzten zwei Wochenenden mit der Fehleranalyse verbracht. So langsam steige ich dahinter was alles falsch läuft. Auf die richtige Idee bin ich auch erst durch etliche Fehlversuche gekommen. Das Grundbrett aus Birke Multiples verlief nicht exakt parallel zur Fräse. Es hatte leichte Unterschiede in der Dicke. Um diesen Fehler zu beseitigen habe ich das Brett plan gefräst.

    Aber denk immer an das, was ein in diesem Forum berühmter Holzwurm einmal sagte:

    Dein Ansatz weiter zu bauen und mit dem Missgeschick zu leben, ist deutlich gesünder als mein Perfektionismus, den ich eh nie erreichen werde.

    ;):pf:

  • Aber denk immer an das, was ein in diesem Forum berühmter Holzwurm einmal sagte:


    ;)

    Zitat von AnobiumPunctatum
    Dein Ansatz weiter zu bauen und mit dem Missgeschick zu leben, ist deutlich gesünder als mein Perfektionismus, den ich eh nie erreichen werde.


    Natürlich mit der Einschränkung, dennoch solch tollen Bauvorhaben, wie dem deinen, nicht aus dem Weg zu gehen.!

    Gesundes Maß ist übrigens immer der richtige Weg!!

    Es grüßt

    Cpt. Baltimore

    Werftbetrieb gestartet für 2-Mast Schoner "Flying Fisch" M1:50. Baumaterial und tüchtige Handwerker für den Start des Projektes nun in ausreichender Menge/Anzahl vorhanden. 3 Fässer Rum haben sich bereits eingefunden, um die Arbeitsmoral in die richtigen Bahnen zu lenken. Nach Schichtende versteht sich!beer

  • Gestern Nachmittag habe ich noch einen letzten Test gemacht, der absolut erfolgreich verlief. Damit ist die Testphase abgeschlossen, was ich mit einem wunderbaren Rumlikör gefeiert habe. Sobald ich am Wochenende wieder in Deutschland bin, kann ich die übrigen Beuteile für das Backbone produzieren und mit dem Zusammenbau anfangen.

    Ich bin echt happy, dass ich hoffentlich bald das Endlosthema "Kiel" beenden kann.

    Gruß Christian

    "Behandle jedes Bauteil, als ob es ein eigenes Modell ist; auf diese Weise wirst Du mehr Modelle an einem Tag als andere in ihrem Leben fertig stellen."

Participate now!

Don’t have an account yet? Register yourself now and be a part of our community!